泊頭市香蕉91黄色视频泵業有限公司

911香蕉小视频找香蕉91黄色视频泵業谘詢電話:13931762407
熱門點擊:
   
公司動態 news
  KCB911香蕉小视频結構特點
KCB911香蕉小视频有齒輪,軸,泵體,安全閥,軸端密封(特殊要求,可選用磁力驅動,零泄漏結構)等組成.齒輪經熱處理有較高的硬度和強度,與軸一同安裝在可更換的軸套內運轉.泵內全部零件的潤滑均在泵.....
油泵產品列表  
911香蕉小视频
91香蕉APP成人污在线看
香蕉爱爱视频
保溫瀝青泵
單螺杆泵
雙螺杆泵
三螺杆泵
自吸式離心泵
渣漿泵
高粘度泵
化工泵
船用泵
磁力泵
渣油泵係列
 
 
產品中心 當前位置 > 香蕉91黄色视频泵業 > 產品展示 > 911香蕉小视频 >
 
  • YCB圓弧911香蕉小视频
  • -詳細參數

YCB圓弧911香蕉小视频概述:
YCB圓弧911香蕉小视频是一種新結構外齧合圓弧911香蕉小视频,圓弧齒輪油泵中的齒輪采用圓弧加其它曲線複合而成的齒形,因而泵具有好的工作特性.該泵同傳統的漸開線齒輪油泵相比:具有壓力波動小、噪音低、效率高、壽命長等優點,是一種新型的係列節能泵.

YCB圓弧911香蕉小视频適用範圍:
 適用於輸送不含固體顆粒和纖維,無腐蝕性,溫度不高於80℃,粘度為5-1500cst的潤滑油或性質類似潤滑油的其它液體.

YCB圓弧911香蕉小视频用途:  
 在輸油係統中可用作傳輸,增壓泵.
 在輸油係統中可用作輸送,加壓,噴射的燃油泵.
 在一切工業領域中,均可作潤滑油泵用.

YCB圓弧911香蕉小视频結構特點:
  YCB圓弧911香蕉小视频齒輪采用具有國際八十年代水平的新技術——雙圓弧正弦曲線齒型.它與漸開線齒輪相比,突出的優點是齒輪齧合過程中齒廓麵沒有相對滑動,所以齒麵無磨損,運轉平衡,無困液現象,噪聲低,壽命長,效率高.該泵擺脫了傳統設計的束縛,使得911香蕉小视频在設計,生產和使用上進入了一個新的領域.
  設有差壓式安全閥作為超載保護,安全閥全回流壓力為泵額定排出壓力的1.5倍.也可在允許排出壓力範圍內根據實際需要另行調整.但是此安全閥不能作減壓閥長期工作,需要時可在管路上另行安裝.
  泵軸端密封設計為兩種形式,一種是機械密封,一種是填料密封,用戶可根據要求選擇.

正確安裝YCB圓弧911香蕉小视频的方法如下:
1.將機組放在埋有地腳螺栓的基礎上,在底座與基礎之間,用成對的楔墊用校正用。
2.鬆開聯軸大,用水平儀分別放在泵軸和底座上,通過調整楔墊,校正機組水平,適當擰緊地腳螺栓,以防走動。
3.校正泵軸和電機軸的同心度,在聯軸大路外圓上,允許偏差0.1毫米;兩聯軸器平麵的間隙應在2~4毫米,(小泵取小值)間隙要均勻,允差0.3毫米。
4.在接好管路及確定電動機轉動方向後,再接上聯軸器,並再校核一遍軸的同心芳。
5.在機組實際試運行2~3小時後,作檢查,如無不良現象,則認為安裝合格。
6.在安裝過程中,為防止雜物落入機器內,機組的所有孔眼均應蓋好。
7.為防止管線中雜物進入泵內,對新安裝的管線,在泵膠應裝設過濾器,其有效截麵應大於吸入管截麵的2~3倍。
安裝YCB圓弧911香蕉小视频的過程中應注意的事項:
1.YCB圓弧911香蕉小视频安裝的好壞,對泵的平穩運行和使用壽命有很重要的影響,所以安裝校正工作必須仔細地進行,不得草率行事。
2.YCB圓弧911香蕉小视频吸入管的安裝高度、長度和管徑應滿足計算值,力求簡短,減少不必要的損失(如彎頭等);並保障泵在工作時,不超過其允許汽蝕餘量。
3.YCB圓弧911香蕉小视频的吸入和排出管路應該有支架。泵不允許承受管路的負荷。
4.安裝YCB圓弧911香蕉小视频的地點應足夠寬敞,以方便檢修工作。

YCB圓弧911香蕉小视频性能參數表


型號

流量
Q
轉速
n
r/min
排出壓力
p
Mpa
必需汽
蝕餘量
r
m
效率
η
%
電動機
m3/h頻率
Hz
功率KW
型號
YCB0.6-0.60.69100.65.532500.75Y90S-6
1.01390500.75Y80L2-4
0.71130600.75Y90S-6
1.21710600.75Y80L2-4
YCB0.6-1.60.69101.67.070501.1Y90L-6
1.01400501.5Y90L-4
0.71130601.1Y90L-6
1.21710601.1Y90S-4
YCB1.6-0.61.69100.65.542500.75Y90S-6
2.51400501.1Y90S-4
1.91130601.1Y90L-6
3.01710601.5Y90L-4
YCB1.6-1.61.69401.67.071502.2Y112M-6
2.51440504Y112M-4
1.91150602.2Y112M-6
3.01750604Y112M-4
YCB3.3-0.63.39400.65.060501.5Y100L-6
5.01420502.2Y100L1-4
4.01150601.5Y100L-6
6.01730602.2Y100L1-4
YCB3.3-1.63.39601.67.072505.5Y132M2-6
5.01440507.5Y132M-4
4.01170604Y132M1-6
6.01750607.5Y132M-4
YCB4-0.64.09400.65.060501.5Y100L-6
6.01420502.2Y100L1-4
4.81150602.2Y112M-6
7.21730603Y100L2-4
YCB4-1.64.09601.67.072505.5Y132M2-6
6.01440507.5Y132M-4
4.81170605.5Y132M-6
7.21750607.5Y132M-4
YCB8-0.68.09600.65.061503Y132S-6
12.01440505.5Y132S-4
9.61170604Y132M1-6
14.41750605.5Y132S-4
YCB8-1.68.09701.67.0755011Y160L-6
12.014605015Y160L-4
9.611706011Y160L-6
14.417606015Y160L-4
YCB10-0.610.09600.65.062504Y132M1-6
15.01440505.5Y132S-4
12.01170605.5Y132M2-6
18.01750607.5Y132M-4
YCB10-1.610.09701.67.0765011Y160L-6
15.014705015Y160L-4
12.011706011Y160L-6
18.017706018.5Y160L-4
YCB20-0.620.09700.65.068507.5Y160M-6
24.01170607.5Y160M-6
YCB25-0.625.09700.65.5695011Y160L-6
30.011706011Y160L-6
YCB30-0.630.09700.65.5705011Y160L-6
36.011706011Y160L-6
YCB40-0.640.09700.65.5725015Y180L-6
48.011806015Y180L-6
YCB50-0.650.09700.65.5725022Y200L2-6
60.011806022Y200L2-6


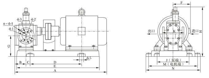
YCB不鏽鋼圓弧911香蕉小视频外型、安裝尺寸
YCB不鏽鋼圓弧911香蕉小视频外型、安裝尺寸
型號LL1L2L3L4BB1B2B3HH1H2DD1D2N-D34-D4d
YCB0.61803045107.5661259170351878092φ25φ100φ754-M104-φ9φ12
YCB1.62083255118.580150115905020879.795φ32φ120φ904-φ144-φ11φ14
YCB3.3247.63570132.85981801481207525887.6110φ40φ130φ1004-φ144-φ13φ18
YCB4260.63580134.81081801481207526392.6115φ50φ140φ1104-φ144-φ13φ18
YCB831345100158.513822017814090361105135φ65φ160

φ130

4-φ144-φ13φ24
YCB1033045100168.513822017814090360105135φ65φ160φ1304-φ144-φ13φ24
YCB2040055135201182260226180118436.5130.8170φ80φ190φ1504-φ184-φ18φ32
YCB2543055135216182260226180118436.5130.8170φ100φ210φ1704-φ184-φ18φ32
YCB3045960150236200275231190126461141185φ100φ210φ1704-φ184-φ18φ35
YCB4050070175251.5225300260210140509157205φ125φ240φ2004-φ184-φ18φ40
YCB5049370175246.5225300260210140509157205φ125φ240φ2004-φ184-φ18φ40

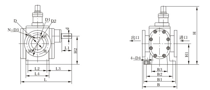
YCB不鏽鋼圓弧911香蕉小视频整機外型、安裝尺寸
YCB不鏽鋼圓弧911香蕉小视频整機外型、安裝尺寸
型號
Model
流量
m3/h
ABCDEFGHJKMNφ1φ2φ3n×φ4
YCB0.6-0.60.650650 22.5280421155115232 136 125222252 φ25 φ75 φ100 4×M10
YCB1.0-0.61.0486.5264405150217207237
YCB1.6-0.61.6 54763 27.5 303 455 155 243 156 150 222 252φ32φ90 φ120
4×φ14
YCB2.5-0.62.5
YCB3.3-0.63.3 6447635 344.5 544.5   180127.6298198180 266 298φ 40 φ100φ130
YCB5.0-0.65.0
YCB4.0-0.64.0 667.58240 346 557 256 288 φ50φ110 φ140
YCB6.0-0.66.0
YCB8.0-0.68.0 795101 50   382 644   210140396218220332364φ65φ130φ160
YCB12-0.612
YCB10-0.610849111430690
YCB15-0.615808392652
YCB20-0.6201009131.5 29.5566845  255 165.8 471.5 270 260380416φ80φ150φ1904×φ18
YCB25-0.6251100146.5603904385421 φ100 φ170 φ210
YCB30-0.630112514735646954196517295275400436
YCB40-0.640121416142.56731023285212562315300425461φ125φ200φ2408×φ18
YCB50-0.650130015952.56801080310237590240300476536φ125φ200φ2408×φ18
 相關新聞
 相關產品

泊頭市香蕉91黄色视频泵業製造有限公司  手機:13931762407 電話:0317-8285333 傳真:0317-8356252 聯係人:吳經理 
郵箱:chinayoubeng@163.com 地址:河北省泊頭市
網址:www.jinbingcheng.com Copyright 泊頭市香蕉91黄色视频泵業製造有限公司 all Rights Reserved .冀ICP備89089671號-1
網站地圖